원성천 바로 앞에 이편한세상이 대단지로 재건축되면서 관심을 가지시는 분들이 늘어났습니다. 하지만 공식적으로 제공된 정보는 많지 않습니다. 그래서 이 단지에 대한 정보를 알려드리려고 합니다.

천안역 이편한세상은 총 1579세대가 입주 예정이며 총 최고 35층의 15개 동으로 구성되어있습니다. 우측 상단부터 101동으로 좌측으로 동이 시작됩니다. 용적률은 284%이며 건폐율은 18%입니다.
위치는 원성천과 남산초등학교를 바로 옆에 두고 있습니다. 초품아이면서 산책로를 바로 옆에 두고 있는 단지여서 인기가 많을 것 같습니다. 그리고 천안역까지도 도보 15-20분 정도가 소요되기 때문에 기차 또는 전철도 쉽게 이용할 수 있습니다. 천안에서는 역과 너무 가까운 경우 소음으로 스트레스를 더 받을 수 있어 약간의 거리가 있는 것이 실거주에 좋습니다. 원성천 방향이 정문이며 상가 동도 그쪽에 위치해있습니다. 상가동의 경우 조합원 물량으로 모두 분양되어 일반분양은 이루어지지 않습니다.
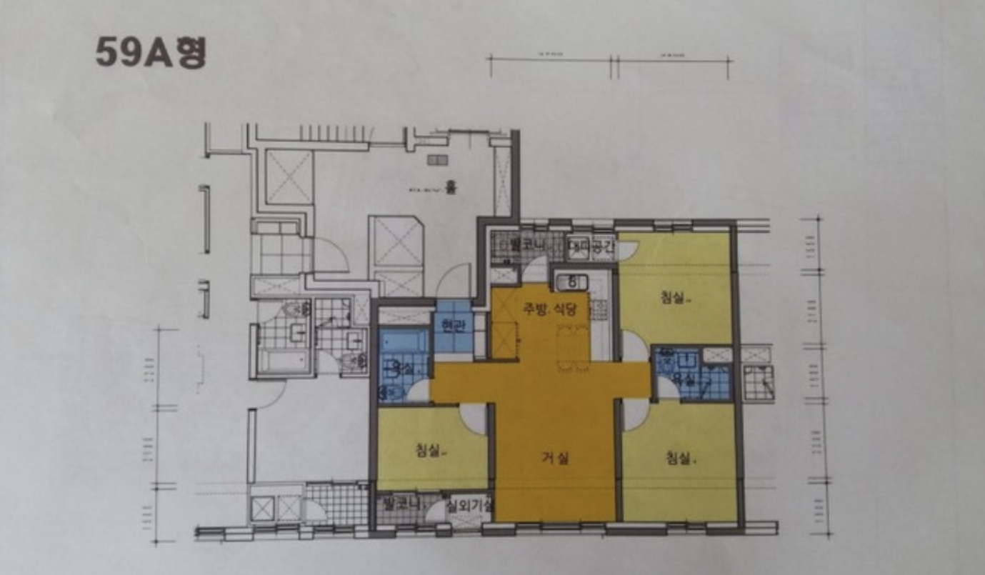
주택 평면 정보
84형의 경우 4 bay구조로 설계되었으며 나머지 59, 74형의 경우 3 bay의 구조입니다. 모두 남서향 또는 남동향으로 거실과 안방의 채광은 나쁘지 않을 것으로 보입니다. 조합원을 제외한 모든 세대는 임대세대로 별도의 구조 옵션을 선택할 수는 없습니다. 그리고 59와 74형의 경우 별도 주방 아일랜드는 없으며 환기창이 주방에 있지 않습니다. 환기가 필요한 경우에는 발코니 문과 발코니 밖의 창문을 여시면 일직선으로 통풍이 원활할 수 있습니다. 주방창을 중요시 여기시는 분들은 이점 참고하셔야겠습니다.

위에 말씀드린 것과 같이 59형은 3 Bay입니다. 주방에는 냉장고장과 김치냉장고장이 있습니다 59형 거실 창문은 3개로 구성된 창입니다. 창문이 2개면 더 트여있을 수 있는데 약간 답답할 수 있을 것 같습니다. 욕조는 현관 쪽 화장실에 있고 안방 화장실에는 샤워부스가 있습니다. 그리고 단점으로는 드레스룸이 없다는 것입니다. 일반적으로 59형 분양의 경우에도 파우더룸 정도는 있는데 아쉽습니다.

74형은 59형과 구조는 동일하며 크기가 전반적으로 커진 것과 작은 파우더룸(드레스룸)이 생겼다는 것입니다. 주방에는 냉장고장 옆으로 공간이 추가적으로 생겨있네요.

84형은 가장 선호하는 4 bay타입입니다. 현관 펜트리도 구성되어있고 알파룸이 별도로 구성되어있습니다. 냉장고장/김치냉장고장의 사이즈는 줄어있지만 주방 발코니가 더 넓게 구성되었습니다. 주방 창문도 다른 타입과 다르게 설치되어있습니다. 그리고 ㄷ자 형 주방으로 아일랜드 식탁과 같은 느낌을 낼 수 있을 것 같습니다. 그리고 핵심인 드레스룸이 안방 쪽으로 구성되어있습니다. 화장실 입구 바로 앞에는 파우더룸도 작게 있습니다.
단지 배치도

세대수가 많은 대단지이다보니 차량 출입구는 세 곳입니다. 주출입구는 GS프레시가 위치한 곳에 있습니다. 청색 계열은 59타입, 노란색은 74타입, 분홍색은 84타입입니다. 원성천을 바라보는 뷰는 모두 국평 이하의 평형만 있네요!
2022년 02월 기준 현장 방문기는 아래의 글을 참고 부탁드립니다.
천안 민간임대아파트 - 원성동 이편한세상 현장 사진 및 분양 예상 일정
천안역 주변이 요즘 크게 바뀌고 있는데 원성천을 끼고있는 아파트가 건축되면서 사람들의 관심이 커지고 있습니다. 분양 시기가 다가와서 한번 현장에 방문해보았습니다. 1500세대가 넘는 대단
house.allthequality.com
임대 일정(청약 일정)
이편한세상의 분양일정과 관련된 정보는 아래의 그림을 클릭하시면 연간분양일정으로 바로 이동하게 됩니다.

아직까지 원성동 이편한세상 천안역에 대한 임대/청약관련 정확한 일정은 없습니다. 입주예정일은 23년도 4-->6월로 계획되어있어 6개월도 남아있지 않은 상태입니다. 입주 일정과 입주자를 모집하여 탈락자 심사일정까지 고려하면 23년도 3월 정도에 임대공고가 나올 것 같습니다. 하지만 재건축 사업이기 때문에 조합측과 문제가 발생될 경우 추가적으로 지연될 수 있습니다. 사실 22년도 10월 임대모집을 한 뒤 11월에 바로 입주하는 것으로 예정이었지만 연기된 일정이기 때문입니다. 이점 참고하시고 조금만 기다리시면 일정을 확인하실 수 있습니다. 일정과 임대금액이 추가 확정되어 나오는 경우 다시 블로그를 통해 업데이트하도록 하겠습니다.
2023년 04월 01일 추가 업데이트 드립니다.
조합원 분들은 3월에 사전점검을 진행하시고 입주는 5월에 실시한다고 합니다. 그리고 임대아파트는 4-5월에 진행해서 7월 경에 입주를 한다고 하니 8월정도에는 입주한다고 보시면 됩니다.
'부동산' 카테고리의 다른 글
| [포레나 당산] 역세권 청년주택, 모집 정보 및 주택 평면도 (0) | 2022.11.20 |
|---|---|
| 뉴스테이에 대한 정보와 장단점 총정리 (0) | 2022.11.10 |
| 재개발 지역(천안 대흥 4구역)에 나온 경매 물건, 입주권 받을 수 있을까? (0) | 2022.11.04 |
| 롯데캐슬 더 두정 11월 분양 및 위치 정보 (0) | 2022.10.31 |
| 아산 탕정 행복주택 모집 정보(2-A9BL) - 평면도, 금액 (0) | 2022.10.27 |