천안에서 가장 인기있는 지역으로 뽑자면 불당동 다음 성성동입니다. 하지만 성성동은 지금 불당동에 비해서 인프라 구축이 덜 되어있는 상태인데요. 그래서 불당동의 1군 입지는 굳혀져있는 상태입니다. 그래도 아직 개발이 덜 되어있기 때문에 더 발전할 가능성이 크다는 점입니다. 아래와 같이 개발계획이 많이 잡혀있다는 것입니다.
성성동의 위치


성성동은 천안시 서북구에 위치해있는 지역입니다. 2026년도에 완공 예정인 부성역이 위치한 곳의 좌측 구역에 위치한 행정 구역입니다. 1호선이 지나고 있고 더 우측(동쪽)으로 가면 경부고속도로(천안IC)가 있습니다. 여기서 약간 거리가 있지만 KTX 천안아산역은 아래로 내려가 불당동을 지나면 위치해 있습니다. 그리고 성성동 좌측으로는 산업단지가 위치해있습니다.
현재 삼성대로와 맞닿아 있는 성성1~4지구는 분양이 모두 완료되거나 이미 완공되어있습니다. 푸르지오는 이제 4차가 완공을 앞두고 있고 동원비스타의 경우 열심히 건축중에 있습니다.
개발지구 현황
성성지구 동측 개발계획

현재 성성동의 개발구역으로 지정된 곳이 많이 있습니다. 부성역과 한국기술교육대학교 캠퍼스쪽에 있는 성성, 부대지구와 공단과 성성시티자이쪽인 성성8, 업성지구쪽으로 나뉘어 있습니다. 그럼 각 개발지구에 대해서 알아보도록 하시죠.
성성5지구
성성5지구는 비스타 동원의 동쪽에 위치한 지구입니다. 과수원으로 이용중이던 토지가 공동주택 개발을 승인받으면서 천안시에서 공식적으로 지구 지정 및 계발계획을 고시하였습니다. 성성 5지구가 분양을 제일 먼저 진행할 것 같습니다.


- 시행사 : 신한자산신탁
- 시공사 : 현대산업개발(HDC) - 변경될 수 있음
- 공동주택 세대수 : 1,167세대(일반분양)
- 사업 기간 : 2022. 10. 04 ~ 2025. 12. 31
5지구의 경우 6지구, 부대1,2지구와 함께 부성지구를 잇는 과선교의 비용을 공동분담하면선 승인을 받게된 것입니다. 그리고 아래 도면과 같이 시티자이 쪽에 고등학교를 짓는 것에 대해서도 함께 공동분담하게 됩니다. 초등학교, 유치원 및 고등학교의 위치는 아래와 같습니다.


성성5지구의 경우 초등학교와 유치원이 가깝습니다. 그리고 부성역이 예정되어있는 곳과 가까운 곳에 위치해 있어 역을 이용하기도 용이한 편이네요. 그리고 IC로 나가는 도로와 맞닿아 있고, 부성지구를 통해 지나갈 수도 있기 때문에 경부고속도로를 이용하기는 조금 더 쉬울 것으로 예상됩니다. 그리고 남측은 오성고등학교와 기술교육대학교가 있어 조망권이 조금 더 좋다고 보여집니다.
현재 동측의 성성8~10지구는 아이파크로 분양계획이라고 나와있는 곳이 있지만 아직 천안시청에서 고시를 하지 않았습니다. 이점 참고 부탁드립니다. 그래서 만약 진행하더라도 다른 지정된 구역보다는 시간이 더 소요될 수 있습니다. 하지만 부성역이 예정되어있기 때문에 그 시기에 맞추어 개발을 완료하는 방향으로 천안시는 진행할 것 같습니다.
성성지구 서측 개발계획

이제부터는 성성지구(호수공원기준)의 서측에 개발 계획에 대해 알려드리겠습니다.
성성7지구는 약 578세대가 예정되어있습니다. 하지만 시공사 선정 및 기타정보는 아직 고시가 되지 않아 추후 확정되면 안내드리겠습니다.
성성8지구


- 시행사 : 천안성성8도시개발사업조합
- 공동주택 세대수 : 약 1,058세
- 사업 기간 : 2023. 04. 30 ~ 2026. 02. 28
이곳의 성성8지구는 부성역쪽이 아닌 산업단지쪽에 위치한 개발지구입니다. 이곳은 원래 쿠첸 천안사업장이 크게 위치한 곳인데 공동주택으로 변모할 예정입니다. 이 지구는 부성역쪽의 성성8지구와 이름이 동일해 오해하실 수 있으나 성성8지구는 2개로 나뉘어져 있는 점 양지해주세요. 이 성성8지구 북측으로 초등학교와 유치원이 신설될 예정입니다. 그리고 고등학교도 바로 옆에 신설될 예정입니다. 그래서 8지구의 공동주택에 사시게 될 경우 초, 중, 고등학교를 모두 도보로 이동이 가능한 지역에 보내실 수 있습니다. 근데 상권과 학원가까지 들어오기까지는 아직 시간이 걸릴 수 있기 때문에 공동주택 입주 후까지의 시간까지 고려하셔야 할 것 같습니다.


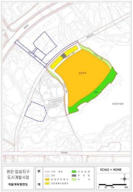
천안업성지구
업성지구의 위치는 현재 대림목장이 위치한 곳입니다. 성성호수공원을 돌다보면 비료, 분변냄새가 느껴지실 때가 있으실 겁니다. 이곳의 영향이 크다고 보여지는데요. 여기가 공동주택으로 변모하게 된다면 더 쾌적한 호수공원이 될 것 같습니다.


- 시행사 : (주)숲이랑코퍼레이션
- 공동주택 세대수 : 약 1,757세대
- 사업 기간 : 2022. 10. 11 ~ 2026. 12. 31
업성지구는 성성호수공원 바로 위쪽에 위치한 공동주택이 지어지는 개발지구입니다. 현재는 대림목장이 위치한 곳이며 이곳의 소유 회사는 농업번인인 숲이랑입니다. 그래서 시행사가 숲이랑 코퍼레이션이죠. 성성호수공원의 북쪽에 건축되는 공동주택이기 때문에 많은 세대가 남향의 창밖으로 호수공원 뷰를 바라볼 수 있는 공동주택이 될 것으로 보입니다. 그리고 초등학교와 유치원도 바로 옆에 위치해 있기 때문에 이제 결혼을 생각하시는 분들에게는 추후에 좋을 것 같습니다. 하지만 이곳은 성성푸르지오 단지들과 멀리 위치해있기 때문에 인프라 생성까지는 조금 불편함을 겪을 수 있겠습니다.


업성지구는 현재 위와 같이 1개만 구역으로만 나와있지만 비고에 보면 업성, 업성2구역으로 나뉜 것으로 보아 2개 공동주택 단지가 공급될 것으로 보여집니다.
아직 부족한 점이 많이 있을수 있지만 좋은 정보가 있으시다면 댓글 부탁드립니다.
이 포스팅은 쿠팡 파트너스 활동의 일환으로, 이에 따른 일정액의 수수료를 제공받습니다.
'부동산' 카테고리의 다른 글
| 천안 민간임대아파트 - 원성동 이편한세상 현장 사진 및 분양 예상 일정 (2) | 2023.02.12 |
|---|---|
| 천안/아산 아파트 입주 일정 및 분석(2023~) (0) | 2023.02.05 |
| 특례보금자리론(최대 5억원, 3.25%의 이율) 신청하세요(소득, 서류, 금리) (0) | 2023.02.02 |
| 양재역 코네스트 - 서울 역세권 청년주택의 모든 정보(가격, 평면도, 자격, 서류, 계약 등) (0) | 2023.01.25 |
| 천안 백석 동부 센트레빌 파크디션 분양 및 위치, 학군 정보(최신) - 예상 분양가? (0) | 2023.01.21 |